Terreno de 601 m² com projeto aprovado em São João de Ovar, Ovar
- 2
- Plano
- -
- -
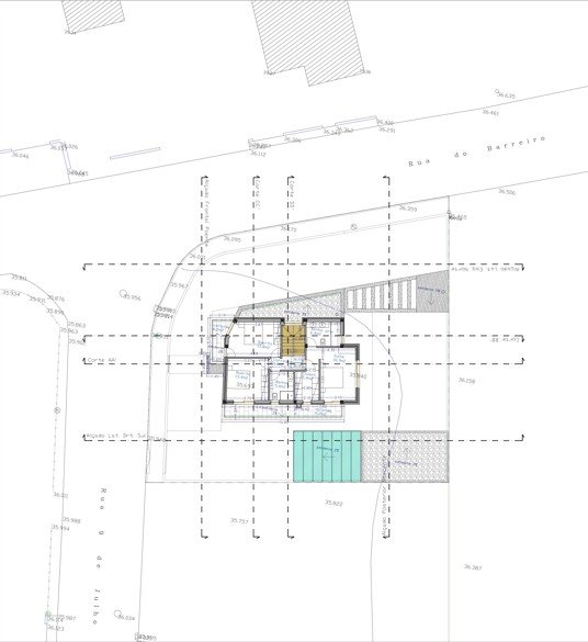
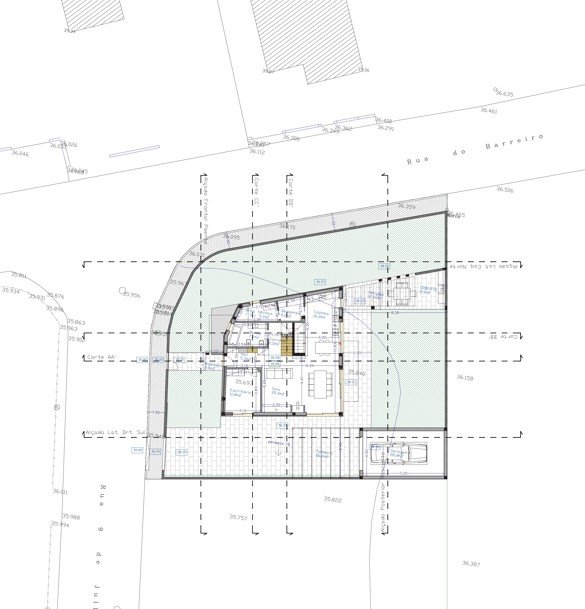
Apresentamos este excelente terreno com 601 m² de área, localizado na freguesia de São João de Ovar, no concelho de Ovar, com projeto aprovado para a construção de uma moradia T3+1 de 2 pisos.
O terreno beneficia de uma localização privilegiada, com ótimos acessos, fica junto à EN109 e a poucos minutos do centro de Ovar. Destaca-se ainda por possuir duas frentes, uma com 24 metros virada a Norte e outra com mais de 20 metros virada a Poente, proporcionando uma maior versatilidade arquitetónica, uma excelente exposição solar e a valorização do imóvel.
Encontra-se próximo de todos os serviços essenciais, comércio, escolas e acessos rápidos às principais vias de circulação, nomeadamente o da A29, tornando-o ideal tanto para habitação própria como para investimento.
Uma oportunidade única para quem procura construir a casa dos seus sonhos com conforto, praticidade e elevado potencial de valorização.
Não perca esta oportunidade, agende já a sua visita.
Excluído do Sistema de Certificação Energético dos Edifícios (SCE) ao abrigo do artigo 4º. Do Decreto-Lei nº. 118/2013 de 20 de agosto.
- Área de terreno: 601 m2
- Área de construção: 275 m2
- Número frentes: 2
- Acesso Pavimentado















